此系列开关设备严格遵循国家标准GB/T1102、GB3906和DL404的要求。其设计亮点之一是具备完善的“五防”联锁功能,这能够有效预防误操作,确保设备运行的安全性与可靠性。KYN61A-40.5 型开关柜是 KYN61 的优化升级版本,在保持相间距不变的前提下,对柜体尺寸、结构布局、绝缘设计以及联锁设计进行了全面的改进,实现了显著的小型化,相较于 KYN61,其长、宽、高各减少了200mm。
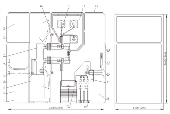
在技术参数方面,KYN61-40.5 系列开关设备的主母线额定电流参数涵盖1250A、1600A至2000A,分支母线额定电流则为630A、1250A和1600A。其额定绝缘水平表现出色,相间与对地的1分钟工频耐受电压有效值为95kV,一次隔离断口为115kV;雷电冲击耐受电压峰值相间与对地达到185kV,一次隔离断口为215kV。辅助控制回路的1分钟工频耐受电压为2000V。此外,设备的额定短路开断电流为25kA或31.5kA,额定短路关合电流峰值可达63kA或80kA,并具备4秒的额定短时耐受电流,同为25kA或31.5kA。外壳防护等级为IP4X,而隔室之间或断路器室门打开时为IP2X。KYN61A的典型尺寸为1200×2600×2400毫米,KYN61则为1400×2800×2600毫米,设备重量约为2300千克。
开关设备内部结构精巧,包含多个关键组件,如柜体、手车室、可移开的手车、手车室门、用于推进的丝杠螺母机构、二次插头、以及ZN□/ST-40.5系列断路器。此外,还设有继电器仪表门、继电器仪表室、活门、触头盒、主母线室、泄压装置、后上盖板、后下盖板、接地开关、隔板、电缆室、电缆夹和电流互感器等,共同确保设备的完整功能和可靠运行。

English
中文简体
русский
Español
عربى


























